Energiesparende Neubau-Stadtvilla mit sonnigem Grundstück in beliebter Wohnlage Hamburg- Meiendorf
22145 Hamburg, Einfamilienhaus zum Kauf
neu
Objektdaten
-
Objekt-ID6683
-
ObjekttypenEinfamilienhaus, Haus
-
Adresse22145 Hamburg
(Rahlstedt (Stadtteil)) -
Wohnfläche ca.120 m²
-
Nutzfläche ca.30 m²
-
Gesamtfläche ca.150 m²
-
Grundstück ca.314 m²
-
Zimmer4,5
-
Schlafzimmer3,5
-
Badezimmer1
-
Separate WC1
-
Terrassen1
-
HeizungsartFußbodenheizung
-
Wesentlicher EnergieträgerErdwärme
-
Zustandprojektiert
-
Außenstellplatz1
-
Käuferprovision3,57 % inkl. gesetzlicher MwSt. auf den Grundstücksanteil
Käuferprovision – Der Käufer ist verpflichtet, eine Courtage in Höhe von 3,57 % inkl. gesetzlicher MwSt. auf den Grundstückskaufpreis an die Firma HAMBURG IMMOBILIEN Dirk Bluhm zu zahlen. Die Courtage ist verdient und fällig bei notariellem Kaufvertragsabschluss. Mit dem Verkäufer besteht ein Maklervertrag zur Zahlung der Courtage in gleicher Höhe. Der anteilige Kaufpreis für das Grundstück beträgt 298.500 €. -
Kaufpreis564.615 EUR
Ausstattung / Merkmale
- ✓ Gäste-WC
- ✓ Separates WC
- ✓ Terrasse
Objektbeschreibung
Beschreibung
Sie träumen von den eigenen vier Wänden, wünschen sich einen Garten und Platz für die ganze Familie? Auf einem idyllischen Grundstück entsteht ein Stadtvilla in massiver Bauweise mit ca. 120 m² Wohnfläche und ca. 314 m² Grundstücksfläche.
Zusätzlich kann der Dachboden mit einer Nutzfläche von ca. 30 m² wohnlich ausgebaut werden, was eine Vergrößerung der anrechenbaren Wohnfläche auf insgesamt ca. 150 m² und zusätzlich 1–2 Zimmern bedeuten würde.
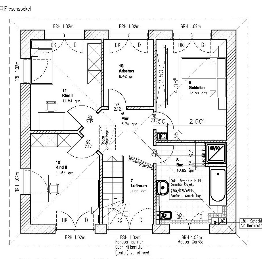
Aktuell sieht der gestaltete Grundriss 4,5 Zimmer auf zwei Etagen vor. Bei der Raumaufteilung entscheiden Sie über Ihren individuellen Wohlfühlgrundriss. Die einzelnen Räume wurden großzügig konzipiert. Der geplante Wohn-/Essbereich verfügt beispielsweise über attraktive ca. 35,16 m² und lässt Ihren Möblierungswünschen freie Hand. Die Küche schließt sich mit ca. 12,61 m² an. Des Weiteren besteht das Erdgeschoss aus einem ca. 7,22 m² großen Hauswirtschaftsraum, einem Tageslicht-Gäste-WC sowie dem Entree. Das erste Obergeschoss verteilt sich auf 3,5 Schlafzimmer von komfortabler Größe sowie ein geräumiges Badezimmer.
Genießen Sie u.a. die angenehme Wärme der Fußbodenheizung im Erd- und Obergeschoss oder die optimale Helligkeit durch bodentiefe Fensterflächen. Eine bodengleiche Dusche aus dem Hause Kaldewei punktet mit Komfort und Optik. Bei der Wahl der Fenster können aktuelle Töne wie anthrazit verwendet werden, welche dem Haus das gewisse Etwas verleihen. Die Dachflächen eignen sich auf Grund der sonnigen Ausrichtung des Grundstücks zur Installierung einer Photovoltaikanlage.
Die Bauneben- und Hausanschlusskosten sind mit € 58.050,00 noch nicht in den Angebotspreis eingerechnet. Das Hausangebot entspricht den GEG (Gebäudeenergiegesetzt).
Der Angebotspreis beinhaltet den Grundstückskaufpreis nebst erwähnter Sonderausstattungen. Die Maler- und Bodenbelags- sowie die Pflasterarbeiten nebst Gartenanlage erstellen Sie in Eigenregie oder ...
+++ Die Fortsetzung der Beschreibung sowie weitere Bilder erhalten Sie mit un
Ausstattung
- energiesparende Stadtvilla in massiver Bauweise
- Endenergiebedarf von 50 kwh (Energieeffiziensklasse A)
- ca. 120 m² Wohnfläche
- ca. 314 m² Grundstücksfläche (anteiliger Kaufpreis 245.000 € bereits enthalten)
- 4,5 Zimmer
- Dachboden mit ca. 30 m² Grundfläche (wohnlich ausbaubar für 1–2 Zimmer)
- Bad mit Wanne und bodengleicher Kaldewei-Dusche
- Gäste-WC
- Fensterrahmenfarbe wählbar
- Fußbodenheizung im EG und OG (wärmepumpenanlage mit erdwärme)
- Fensterfarbe in 32 Tönen möglich
- massive Innenwände im EG und OG
- Grundstück ohne Bestandsimmobilie – keine Abrisskosten, sofortige Bebauung möglich
Sonstiges
Unser Service für Eigentümer: Wir ermitteln für Sie den aktuellen Marktwert Ihrer Immobilie. Zeigen Ihnen unsere hochwertige Präsentation und Verkaufsstrategie und stehen Ihnen und dem Käufer noch nach dem erfolgreichen Verkauf weiter zur Seite. Sprechen Sie uns gern an und vereinbaren Sie einen Beratungstermin bei Ihnen zu Hause oder in unserem Büro. Gern geben wir Ihnen weitere Informationen.
Bitte haben Sie jedoch dafür Verständnis, dass wir nur vollständig ausgefüllte Anfragen (Anbieter kontaktieren) mit Adressangabe, Emailadresse und Telefonnummer bearbeiten können.
Der Makler-Vertrag mit uns kommt durch die Bestätigung der Inanspruchnahme unserer Maklertätigkeit in Textform zustande, wie z.B. durch den Erhalt des Objekt-Exposés. Die Höhe der Courtage richtet sich nach den gesetzlichen Regelungen zur Teilung der Maklercourtage. Hiernach wird die Courtage für beide Parteien (Eigentümer und Käufer) in Höhe von 3,57 % (inkl. MwSt.) in jeweils geltender Höhe, des anteiligen Grundstückskaufpreises bei notariellem Vertragsabschluss verdient und fällig. Der anteilige Kaufpreis für das Grundstück beträgt 298.500 €.
Weitere Bilder und Objekte finden Sie auf unserer Hompage http://www.hamburgimmobilien-bluhm.de
Ihr HAMBURG IMMOBILIEN Team Dirk Bluhm
Das Angebot ist nach Angaben des Verkäufers erstellt, freibleibend und unverbindlich. Änderungen, Irrtümer sowie Zwischenverkauf bleiben vorbehalten.
Kontaktdaten
-
NameFrau Atousa Schneider
-
FirmaHAMBURG IMMOBILIEN Dirk Bluhm
-
AnschriftLademannbogen 21-23
22339 Hamburg -
Telefon
-
Telefon
Lage
Meiendorf, der nördlichste Teil Rahlstedts, ist aus einem alten holsteinischen Dorf entstanden. Der Stadtteil gehört zu den beliebtesten Wohngegenden Hamburgs. Die Infrastruktur ist ideal für Beruf und Familie. Aus der eigenen Tür gelangen Sie direkt in den Volksdorfer Wald bzw. ins Naturschutzgebiet Tunneltal, die zur morgendlichen "Jogging-Runde" einladen. Viele Flächen in der Umgebung sind als Landschaftsschutzgebiete ausgewiesen. Genießen Sie hier die Natur bei erholsamen Spaziergängen und Radtouren!
Die Ortskerne von Volksdorf und Rahlstedt mit ihren vielen Geschäften für den täglichen Bedarf, sowie Ärzten und Restaurants erreichen Sie in wenigen Minuten. Das überregional bekannte und äußerst beliebte Alstertal Einkaufszentrum (AEZ) mit seinen 240 Fachgeschäften erreichen Sie in ca. 15 Minuten.
Das Angebot aller Schulformen und verschiedene Einrichtungen zur Kinderbetreuung, die allesamt schnell erreichbar sind, gehört ebenso zur hohen Wohnqualität.
Die Verkehrsanbindung ist trotz der ruhigen Lage hervorragend. Mit der U-Bahn Linie U1 (Haltestelle Meiendorfer Weg bzw. Berne) erreichen Sie die Hamburger Innenstadt in ca. 25 Minuten, zum Flughafen benötigen Sie ...
+++ Die Fortsetzung der Beschreibung sowie weitere Bilder erhalten Sie mit unserem Exposé +++
Kindergarten 650 m | Grundschule 650 m | Gymnasium 1 km | Flughafen 13,70 km | Fernbahnhof 3,30 km | Autobahn 6,70 km | U/S-Bahn 1,70 km | Zentrum 14,30 km | Bus 280 m | Einkaufsmöglichkeiten 480 m | Gaststätten 280 m
Die dargestellte Position der Immobilie ist nur eine ungefähre Angabe.





