NEUBAU DH | 4-5 ZIMMER | 120,00 M² WFL. | HH- BRAMFELD |TOP RUHIGE SONNENLAGE | RECHTE HAUSHÄLFTE
22175 Hamburg, Doppelhaushälfte zum Kauf
Referenz
Dieses Objekt wurde bereits erfolgreich vermittelt.
Objektbeschreibung
Beschreibung
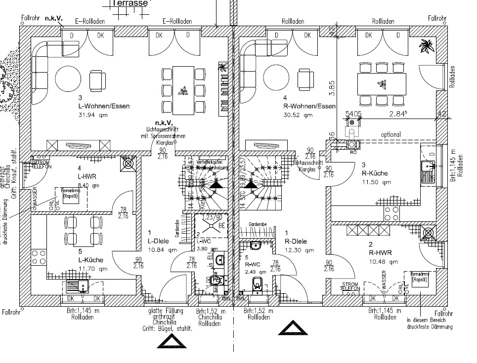
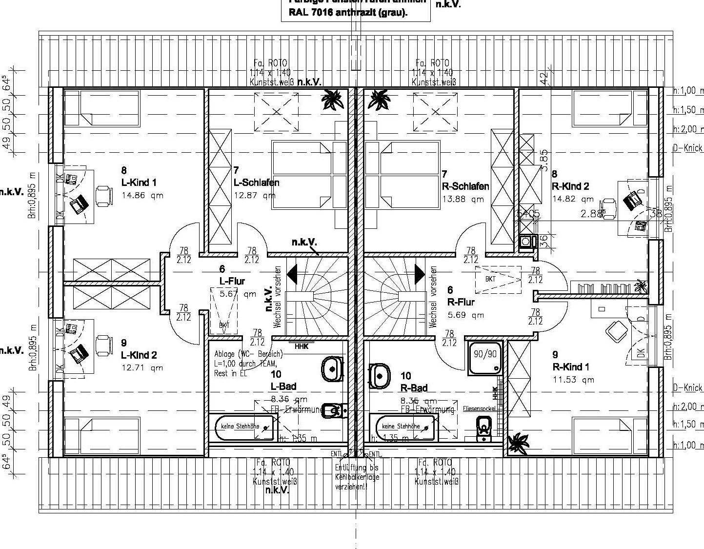
Sie träumen von den eigenen vier Wänden, wünschen sich einen Garten und Platz für die ganze Familie? Voilá: Auf einem idyllischen Grundstück entstehen zwei Doppelhaushälften mit ca. 120 m² Wohnfläche, ausbaubarem Dachboden und ca. 473 m² Grundstücksfläche. Aktuell sieht der gestaltete Grundriss vier Zimmer vor. Bei Ausbau des Dachbodens lassen sich ca. 17 weitere qm realisieren. Bei der Raumaufteilung entscheiden Sie über Ihren individuellen Wohlfühlgrundriss. Anbei finden Sie zwei Varianten.
Ihrem neuen Zuhause soll es an nichts fehlen und Sie sollen nicht auf Komfort verzichten müssen. Genießen Sie z. B. die angenehme Wärme der Fußbodenheizung im Erd- und Obergeschoss oder die optimale Helligkeit durch bodentiefe Fensterflächen. Eine Solaranlage unterstützt die Warmwasser-Aufbereitung, die Innenwände werden massiv gestaltet. Eine bodengleiche Dusche aus dem Hause Kaldewei punktet mit Komfort und Optik. Für Privatsphäre sorgt eine Terrassentrennwand in Verblendmauerwerk. Bei der Wahl der Fenster können aktuelle Töne wie anthrazit verwendet werden, welche dem Haus das gewisse etwas verleihen.
Die Bauneben- und Hausanschlusskosten sind mit € 31.750,00 in dem Angebotspreis eingerechnet. Das Hausangebot entspricht der in 2016 verschärften Energieeinsparverordnung 2014.
Eine Aufrüstung auf den Energiestandard KfW 55 kann über den Einbau einer Wohnraum-Lüftungsanlage mit Wärmerückgewinnung in den Wohngeschoßen unproblematisch realisiert werden.
Der Angebotspreis der DHH beinhaltet den Grundstückskaufpreis (provisionspflichtig), die schlüsselfertige Doppelhaushälfte nebst erwähnter Sonderausstattungen, die Abbruchkosten für die Altsubstanz und Hausanschluß sowie Baunebenkosten.
Die Maler- und Bodenbelagsarbeiten sowie die Pflasterarbeiten nebst Gartenanlage erstellen Sie in Eigenregie.
Ausstattung
- Doppelhaushälfte
- ca. 120 m² Wohnfläche
- ca. 473 m² Grundstücksfläche
- 4 Zimmer
- Erweiterung auf 5 Zimmer durch Dachboden-Ausbau möglich
- Bad mit Wanne und bodengleicher Kaldewei-Dusche
- Gäste-WC
- Giebel mit massivem Hintermauerwerk und Verblendstein
- Terrassentrennwand in Verblendmauerwerk
- Fußbodenheizung im EG und OG (Gaszentralheizung)
- Solaranlage für die Warmwasser-Aufbereitung und ca. 290 Liter Speicher
- bodentiefe Fenster im Bereich des Hausgiebels
- Fenster farbig
- Massive Innenwände im DG
Sonstiges
Das Gebäude auf dem Titelbild und auch die Grundrisse zeigen teilweise Sonderausstattungen. Diese sind nicht Angebotsbestandteil, so sie hier nicht ausdrücklich erwähnt sind!
Ich bitte um Beachtung!
Die Grundrisse sind als Beispielgrundrisse zu verstehen. Jedes Haus wird individuell nach Ihren Vorstellungen und Wünschen durch die Fa. Team Massivhaus GmbH geplant und gebaut.
Unser Service für Eigentümer: Wir ermitteln für Sie den aktuellen Marktwert Ihrer Immobilie. Zeigen Ihnen unsere hochwertige Präsentation und Verkaufsstrategie und stehen Ihnen und dem Käufer noch nach dem erfolgreichen Verkauf weiter zur Seite. Sprechen Sie uns gerne an und vereinbaren Sie einen Beratungstermin bei Ihnen zu Hause oder in unserem Büro.Gerne geben wir Ihnen weitere Informationen. Bitte haben Sie jedoch dafür Verständnis, dass wir nur vollständig ausgefüllte Anfragen (Anbieter Kontaktieren) mit Adressangabe, Emailadresse (wenn vorhanden) und Telefonnummer bearbeiten können.
Weitere Bilder und Objekte finden Sie auf unserer Hompage http://www.Bluhm-Kettler.de
Ihr HAMBURG IMMOBILIEN Team Bluhm & Kettler
Das Angebot ist nach Angaben des Verkäufers erstellt, freibleibend und unverbindlich. Änderungen, Irrtümer sowie Zwischenverkauf bleiben vorbehalten.
Lage
Bramfeld ist ein Stadtteil im Nordosten Hamburgs beiderseits der ehemaligen B434 mit etwa 50.000 Einwohnern. An Bramfeld grenzen die Stadtteile Wellingsbüttel und Sasel, Farmsen-Berne, Wandsbek, Barmbek-Nord, Steilshoop und Ohlsdorf.
Der beliebte Hamburger Stadtteil Bramfeld bietet seinen Anwohnern eine ideale Infrastruktur mit vielfältigen Einkaufsmöglichkeiten (z.B. im neuen Bramfelder Einkaufszentrum Marktplatz-Galerie) sowie sämtlichen Einrichtungen des täglichen Lebens (Kindergärten, Schulen, Ärzte, Banken, Ämter), die bequem zu Fuß oder per Rad erreichbar sind.
Das überregional bekannte Alstertaler Einkaufszentrum (AEZ), das EKZ Hamburger Meile und das Wandsbeker Quarree werden allen Einkaufswünschen gerecht. Für eine aktive Freizeitgestaltung stehen mehrere Sportvereine, Cafés, ein öffentliches Schwimmbad sowie diverse Grünflächen, Parkanlagen und der Bramfelder See zur Verfügung. Das nahegelegene Alstertal lädt zu ausgiebigen und erholsamen Spaziergängen am Alsterlauf ein.
Diverse öffentliche Verkehrsmittel (U-Bahn und div. Buslinien) befinden sich in unmittelbarer Nähe und verbinden den Stadtteil mit der Innenstadt. Mit dem PKW ist die Hamburger Innenstadt in nur ca. 20 Minuten zu erreichen. Zum Flughafen gelangen Sie in etwa 15 Minuten.
Kindergarten 100 m | Grundschule 200 m | Autobahn 6,70 km | Zentrum 13 km
22175 Hamburg, Deutschland (auf Google Maps ansehen)





