Erstbezug: Moderne und energieeffiziente Doppelhaushälfte in ruhiger Lage von Bildstedt zur Miete
22117 Hamburg, Zweifamilienhaus zur Miete
Referenz
Dieses Objekt wurde bereits erfolgreich vermittelt.
Objektbeschreibung
Beschreibung
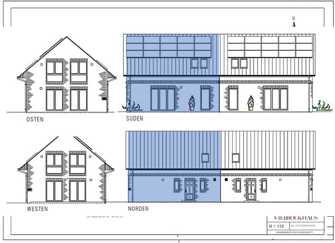
In einer der idyllischsten und ruhigsten Straßen Billstedts steht eine hochmoderne, energieeffiziente Doppelhaushälfte zur Vermietung, die höchsten Wohnkomfort verspricht. Die Immobilie besticht durch ihre durchdachten Grundrisse und die harmonische Eingliederung in das friedliche Wohnumfeld.
Die von der renommierten Firma Viebrockhaus geplante Doppelhaushälfte befindet sich auf einem großzügigen
430 m² großen Grundstück. Die Aufteilung des Grundstücks überzeugt durch ihre ideale Gestaltung: Die voneinander abgetrennten Terrassen bieten ein Höchstmaß an Privatsphäre und verleihen dem Haus den Charme eines freistehenden Einfamilienhauses.
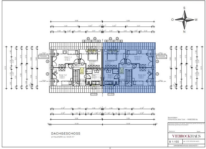
Mit einer großzügigen Wohnfläche von etwa 118 m² bietet die Doppelhaushälfte ein komfortables Zuhause. Schon beim Betreten des Hauses werden Sie von einem einladenden Eingangsbereich empfangen, der in ein offenes und lichtdurchflutetes Wohnkonzept übergeht. Der weitläufige Wohnbereich bildet mit ca. 46,29 m² das Herzstück des Hauses und ist der perfekte Ort für familiäre Aktivitäten und gesellige Zusammenkünfte. Die Doppelhaushälfte präsentiert sich als Erstbezug und verfügt über hochwertige Ausstattungsdetails sowie modernes Design.
Eine Einbauküche ist im Mietpreis enthalten. Diese ist mit einem modernen Induktionskochfeld ausgestattet, das durch einen elegant im Schrank integrierten Dunstabzug ergänzt wird, sowie einem Backofen, der die stilvolle Ausstattung komplettiert. Die Küche bietet viel Stauraum und eignet sich ideal für Hobbyköche und Genießer.
Im Erdgeschoss ist der Boden mit hochwertigen, pflegeleichten Fliesen ausgelegt, während im Obergeschoss edler Designer Boden verlegt wurde, der eine warme und gemütliche Atmosphäre schafft. Bodentiefe, dreifach verglaste Kunststofffenster mit Rollläden durchfluten das gesamte Haus mit natürlichem Licht und schaffen eine helle, freundliche Atmosphäre.
Das Erdgeschoss verfügt zudem über einen...
+++ Die Fortsetzung der Beschreibung sowie weitere Bilder erhalten Sie mit unse
Ausstattung
- Neubau von der Firma Viebrockhaus
- ca. 118 m² Wohnfläche
- Etwa 5,86 m² Nutzfläche plus ca. 30 m² zusätzliche Fläche im Dachgeschoss.
- ca. 430 m ² Grundstück
- Energieeffizienz 40
- QNG-zertifiziertes Haus
- Wärmepumpe
- Photovoltaikanlage
- Designer Fußboden
- großzügiger Wohn- und Essbereich
- Gäste-WC im EG
- Wannenbad im OG
- drei Schlafzimmer im OG
- Hauswirtschaftsraum im EG mit Waschmaschinenanschluss
- U-Bahn-Station Steinfurther Allee nur 500 m vom Haus entfernt
Übersicht Gesamtmiete:
Nettokaltmiete: 2065,00 €/Monat
Nebenkostenvorauszahlung: 120,00 €
Gesamtmiete: 2185,00 €
- Die Verbrauchskosten für Wasser, Abwasser und Strom werden direkt vom Mieter mit den entsprechenden Versorgern abgerechnet.
Sonstiges
Alle Angaben sind ohne Gewähr und basieren ausschließlich auf Informationen, die uns von unserem Auftraggeber zur Verfügung gestellt wurden. Wir übernehmen keine Gewähr für die Vollständigkeit, Richtigkeit und Aktualität dieser Angaben. Irrtum und Zwischenvermietung vorbehalten.
Lage
Schiffbek – ein Stadtteil mit vielen Gesichtern!
Urkundlich wurde dieser Stadtteil 1212 erwähnt und bezeichnet die Stelle, bis zu der die Bille schiffbar war und bedeutet „schiffbarer Bach“.
Im Jahre 2012 feierte Schiffbek, damals „Scibeke“, sein 800-jähriges Bestehen und sich 1927 mit Öjendorf und Kirschsteinbek zur Gemeinde Billstedt zusammenschloss.
Schiffbek bildet heute das Zentrum von Billstedt und beherbergt das Kundenzentrum des Bezirksamts, eine Fußgängerzone sowie ein Einkaufszentrum.
Somit umfasst Billstedt rund 70.000 Einwohner und ist ein Stadtteil im Bezirk Hamburg-Mitte. Geprägt ist dieser Stadtteil durch den Wohnungsbau und die stetig wachsenden Bevölkerungszahlen. Aufgrund der Einwohner kam es zum Ausbau des Straßennetzes und 1969 wurden die U-Bahn und der neue Billstedter Marktplatz eingeweiht.
Zur Naherholung sind die Bille, der Jenfelder sowie der Schleemer Bach, der Öjendorfer Park mit angrenzendem See und die Öjendorfer Friedhof bestens geeignet. Hier können Sie ausgegehnte Spaziergänge vornehmen, eine Runde joggen oder einfach nur die Seele baumeln lassen und die Natur genießen.
Der Öjendorfer Park ist der drittgrößte Park der Hansestadt und lädt zum Picknicken oder Baden ein, denn der Öjendorfer See ist zweimal so groß wie die Binnenalster.
Die Bille entspringt im Südosten Schleswig-Holsteins und mündet in Hamburg in die Unterelbe. Seit 1987 steht das Billetal, zwischen Grander Mühle und Reinbeker Mühlenteich, unter Naturschutz, da sich gefährdete Fischarten wie Äsche und Bachschmerle angesiedelt habe. Auch nisten seltene Vögel wie der Eisvogel im Uferbereich. Entlang des Ufers führt ein Wanderweg entlang und Radfahrer dürfen ebenfalls fahren. Das ideale Paddelrevier befindet sich zwischen Bergedorf und Reinbek.
Zweimal in der Woche, dienstags und freitags, stehen die Marktstände mit Obst, Gemüse, Fleisch und vielem mehr aus der Region im Öjendorfer Weg. Entlang der Billstedter Hauptstraße werden Sie mit verschiedenen Restaurants v
Kindergarten 3,10 km | Grundschule 1,80 km | Gymnasium 1,60 km | Flughafen 17 km | Autobahn 1,10 km | U/S-Bahn 500 m | Zentrum 9,70 km | Bus 180 m | Einkaufsmöglichkeiten 2,30 km | Gaststätten 70 m
Die dargestellte Position der Immobilie ist nur eine ungefähre Angabe.
































